• Work
  • News
  • CV
  • Contact
contrAR

Transformative ARTeFACTS

  • Work
  • News
  • CV
  • Contact

Identities Stacked

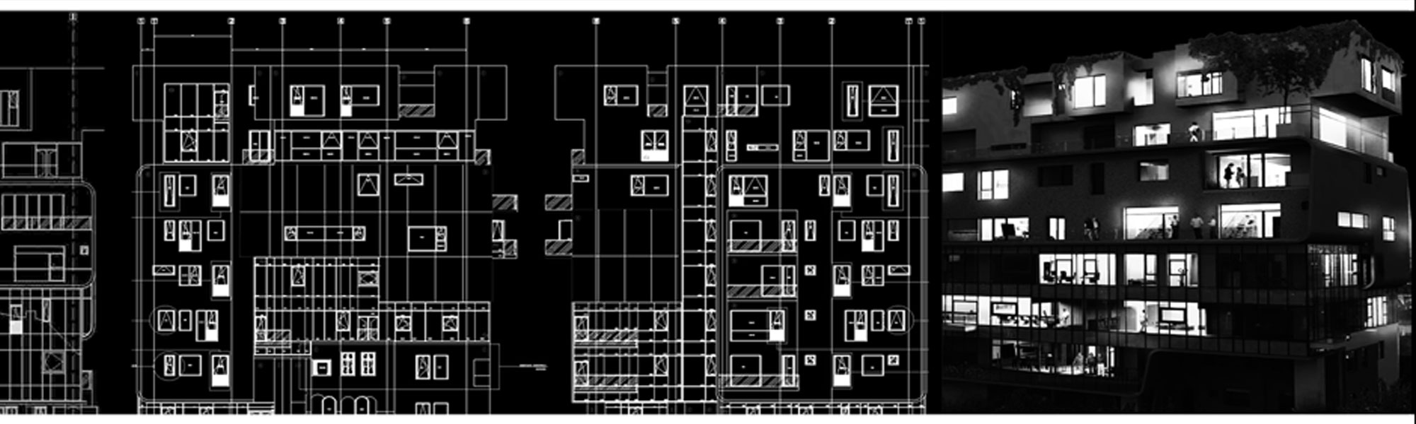
LUXURY RESIDENCES ON EMINESCU STREET

7.500 SQM___________BUCURESTI, ROMANIA

 

WHEN ONE IDENTITY IS NOT ENOUGH

How to stack different style living units on top of each other, in a diffuse historical context?

During three years of laborious detailing and extensive revisions, this constructed project proved to be a hands-on opportunity for understanding the complexity of the construction process, from the detailing of interior spaces to the facade studies for the exterior envelope.

 

CREDITS: DSBA

LRES_03.jpg
LRES_01.jpg
LRES_02.jpg
LRES_02.jpg
LRES_05.jpg
LRES_06.jpg
LRES_07.jpg
LRES_08.jpg

Powered by Squarespace 6